
Hier finden Sie Informationen zum Thema: Gestaltung der Wohnflächen – Grundriss
Der klar strukturierte Grundriss, der in einer überzeugenden architektonischen Sprache gehalten wird, bietet den Bewohnern ein hohes Maß an Flexibilität und lässt eine relativ freie Raumaufteilung zu.
Sowohl Erd- als auch Obergeschoss können separat als kleine Wohneinheiten genutzt werden.
Der stufenlose Eingang mit ausreichend großen freigehaltenen Bewegungsflächen in den einzelnen Räumen sichert ein komfortables Wohnen in allen Lebenslagen.
Das gesunde und behagliche Wohnen wird durch Verwendung von natürlichen Materialien und Einhaltung der geltenden Vorschriften sichergestellt. Unser Ziel ist es, einen sinnvollen energetischen Standard und eine einfache Handhabung der Technik zu gewährleisten.
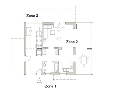
Die gedankliche Einteilung der Wohnfläche (s. Beispiele) soll den "gutnachbarlichen Gedanken" widerspiegeln.
- Zone 1 – Vorgarten – Förderung der Kommunikation
- Zone 2 – Hauskern – flexible Raumgestaltung.
- Zone 3 – Hauptgarten – privater Rückzugsbereich.


